Zum Hauptinhalt springen

Stahleckzargen

Zu diesem Produkt liegen noch keine Bewertungen vor.

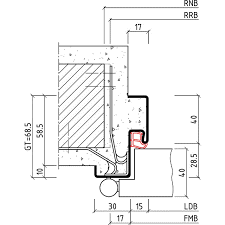
Eckzarge Stahl DIN 18111 für Mauerwerk 1-teilig

In verschiedenen Maßen,Oberfläche: Feinblech feuerverzinkt in Lichtgrau (in Anlehnung an RAL 7035), Zargen - Profil: 11100 1-teilig geschweiß, Falls kein ander…
ab 108,59 € *